The final set of plans include the following:
Detailed elevations of all sides showing exterior finishes, wall heights, finished grades, and footing depths.
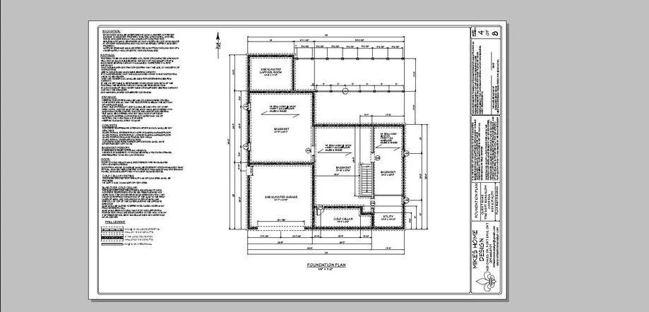
Foundation plan with a detailed structure such as floor joists, steel teleposts, steel beams, deck supports, and bearing walls.
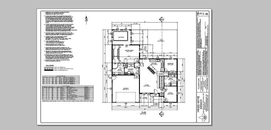
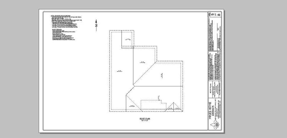
Floor plans showing roof structure, steel or wood beams, floor joists, posts, and bearing walls.
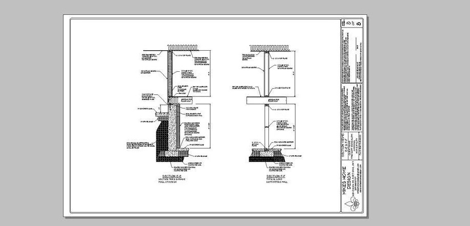
Wall details and/or cross-section cut through details.
4 copies of drawings to scale for submission to the municipality for Building Permit.
Signed designer form with registered BCIN number for submission to the municipality.
(Guaranties design meets the Ontario Building Code)






Mike’s Home Design plans do not include material lists, electrical, plumbing, HVAC, site plans, or any special engineering that may be required.